Moduly pro rekreaci

Venkovní mobilní kuchyně s domkem na nářadí

Zemní vruty jsou levným a robustním řešením pro statické zajištění modulu ve svahu. 

V letních měsících rozšiřuje užitný prostor rozlehlá terasa.  

Obložení interiéru masivním dřevem spolu s malým krbem dokáží i v chladných dnech zajistit hřejivé zázemí.


Modul se stříškou může sloužit jak k rekreaci, tak i jako saunovací modul s infrasaunou.

Moderní řešení domku na zahradě.

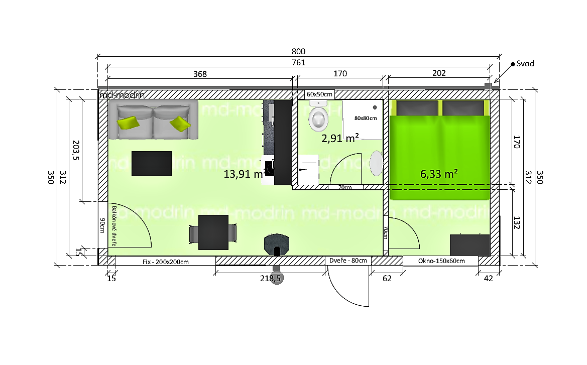
Modul 6x3m

Půdorys - 8x3,5m                                                               Půdorys - 7x3,5m

Kolik modul stojí a jak rychle ho získám?